mod. Napoli – Casetta in legno 6 mq
Casetta da Giardino della linea Start, un’ampia porta a 2 ante per una superficie calpestabile di 5,12 mq.| DETTAGLI GENERALI | |
|---|---|
| Spessore parete | 28 mm |
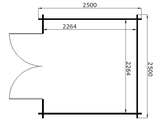
| Larghezza | 2500 mm |
| Profodità | 2500 mm |
| Impronta | 6,25 m2 |
| Dimensione Interna | 2264 mm |
| Profondità Interna | 2264 mm |
| Superficie Interna | 6,25 m2 |
| Materiale costruttivo | Abete rosso |
| Sistema costruttivo | Ad incastro |
| PAVIMENTO E FONDAZIONE | |
|---|---|
| La fondazione minima richiesta | 2320 x 2320 mm |
| Travetti sotto pavimento | Tratatti in autoclave |
| Altezza travetti | 40 mm |
| Interax travetti pavimento | 0 mm |
| Coibentazione pavimento | Opzionale |
| Spessore pavimento | Opzionale |
| PARETI | |
|---|---|
| Spessore parete | 28 mm |
| Coibentazione pareti | Opzionale |
| Rivestimento esterno | Opzionale |
| Spessore pareti interniSenza pareti interni | Senza pareti interni |
| Spessore di isolamento della parete interno | Opzionale |
| Spessore rivestimento della parete interno | Opzionale |
| Superfice pareti esterni | 19,51 m2 |
| Superfice pareti interni | 0 m2 |
| Rinforzo contro il vento | Si |
| DETTAGLI TETTO | |
|---|---|
| Trave tetto | Legno massiccio |
| Sezione delle trave | 40 x 120 mm |
| Angolo tetto | 21,28° |
| Coibentazione tetto | Opzionale |
| Perlina tetto | 19 mm |
| Altezza laterale(gronda) | 2000 mm |
| Altezza totale(colmo) | 2500 mm |
| Sporgenza anteriore | 500 mm |
| Sporgenza laterale | 90 mm |
| Sporgenza posteriore | 90 mm |
| INFISSI | |
|---|---|
| Apertura | Esterna |
| Scuri finestre | No |
| Sistema Chiusura | Normale |
| ESTERNO | INTERNO |
|---|---|
| 1 PZ – 123-UD-ITA-02 – 1600 x 1900 mm |








